Page 52 - igs-siegenia-titan-af_de
P. 52
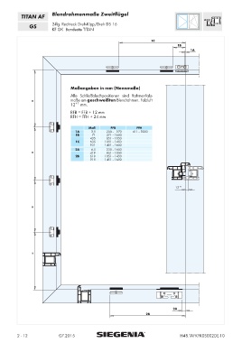
Blendrahmenmaße Zweitflügel
TITAN AF
GS 2-flg. Rechteck Dreh-Kipp/Dreh DS 16
KF GK Bandseite TITAN
Maßangaben in mm (Nennmaße)
Alle Schließblechpositionen sind Rahmenfalz-
maße am geschweißten Blendrahmen. Falzluft
12 +1 mm.
RFB=FFB+12mm
RFH=FFH+24mm
Maß FFB FFH
1A 3,5 230– 370 411–3000
1B 71 371–1650
435 851–1050
1C 635 1051–1450
931 1451–1650
2A 6,5 230–1650
419 851–1050
2B 619 1051–1450
915 1451–1650
2-12 07.2015 H48.TAFKFK0S002DE-10

