Page 197 - igs-siegenia-titan-af_de
P. 197
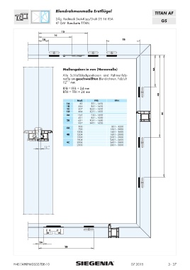
Blendrahmenmaße Erstflügel
TITAN AF
2-flg. Rechteck Dreh-Kipp/Dreh DS 16 RSA GS
KF GM Bandseite TITAN
Maßangaben in mm (Nennmaße)
Alle Schließblechpositionen sind Rahmenfalz-
maße am geschweißten Blendrahmen. Falzluft
12 +1 mm.
RFB=FFB+24mm
RFH=FFH+24mm
Maß FFB FFH
1A 83 331–1650
1B 556 851–1650
1C 307 1251–1650
1D 466 1251–1650
2A 18,5 230–1650
431 851–1050
2B 631 1051–1450
927 1451–1650
500 801–1200
4A
700 1201–3000
1004 1401–1600
4B 1204 1601–2000
1500 2001–3000
1804 2401–2600
4C 2004 2601–2800
2300 2801–3000
H48.TAFKFM0S027DE-10 07.2015 3-37

