Page 196 - igs-siegenia-titan-af_de
P. 196
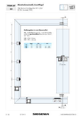
Blendrahmenmaße Zweitflügel
TITAN AF
GS 2-flg. Rechteck Dreh-Kipp/Dreh DS 16 RSA
KF GM Bandseite TITAN
Maßangaben in mm (Nennmaße)
Alle Schließblechpositionen sind Rahmenfalz-
maße am geschweißten Blendrahmen. Falzluft
12 +1 mm.
RFB=FFB+12mm
RFH=FFH+24mm
Maß FFB FFH
1A 3,5 230– 850
2A 6,5 230– 850 411– 800
2B 3,5 230– 850 801–3000
3-36 07.2015 H48.TAFKFM0S027DE-10

