Page 155 - igs-siegenia-favorit_de
P. 155

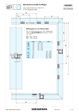
Blendrahmenmaße Erstflügel
                                                                                                  FAVORIT
                                    2-flg. Rechteck Dreh-Kipp/Dreh DS 16
                                    KF GM Bandseite Si-line                                      ohne Sicherheit


                                        1D
                                   1C
                            1A                                                1B









                                        Maßangaben in mm (Nennmaße)
                                        Alle Schließblechpositionen sind Rahmenfalz-
                                        maße am geschweißten Blendrahmen. Falzluft                4A
                                        12 +1  mm.

                                        RFB=FFB+24mm
                                        RFH=FFH+24mm


                                                 Maß        FFB          FFH
                                           1A      83     410–1650
                                           1B     553     801–1650
                                           1C     307    1261–1650
                                           1D     499    1261–1650                                   4B
                                                  405     801–1260
                                           2A     605    1261–1490
                                                  805    1491–1650
                                                  421                  801–1200
                                                  621                 1201–1600
                                           4A
                                                  821                 1601–2000
                                                  621                 2001–3000
                                           4B    1221                 2001–3000                        4C
                                                 1621                 2401–2600
                                           4C
                                                 1821                 2601–3000
                             12  +1





































                                       2A




          H48.FAVKFM0S502DE-01                                                     09.2016                3-13
   150   151   152   153   154   155   156   157   158   159   160