Page 154 - igs-siegenia-favorit_de
P. 154

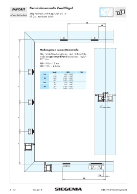
Blendrahmenmaße Zweitflügel
            FAVORIT
                           2-flg. Rechteck Dreh-Kipp/Dreh DS 16
          ohne Sicherheit
                           KF GM Bandseite Si-line

                                                                            1B
                                                                                         1A











                                    Maßangaben in mm (Nennmaße)
                                    Alle Schließblechpositionen sind Rahmenfalz-
                                    maße am geschweißten Blendrahmen. Falzluft
                  =
                                    12 +1  mm.
                                    RFB=FFB+12mm
                                    RFH=FFH+24mm


                                               Maß         FFB        FFH
                                       1A       71       410–1650
                                               409       801–1260
                                       1B      609      1261–1490
                                               809      1491–1650
                                       2A       6,5      410–1650
                                               393       801–1260
                  =                    2B      593      1261–1490
                                               793      1491–1650








                                                                                        12  +1




                  =













                  =















                                                                                       2A
                                                                         2B




          3-12                09.2016                                                    H48.FAVKFM0S502DE-01
   149   150   151   152   153   154   155   156   157   158   159