Page 188 - igs-siegenia-titan-af_de
P. 188
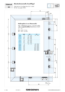
Blendrahmenmaße Zweitflügel
TITAN AF
GS 2-flg. Rechteck Dreh-Kipp/Dreh DS 16 BAN
KF GM Bandseite TITAN
Maßangaben in mm (Nennmaße)
Alle Schließblechpositionen sind Rahmenfalz-
maße am geschweißten Blendrahmen. Falzluft
12 +1 mm.
RFB=FFB+12mm
RFH=FFH+24mm
Maß FFB FFH
1A 3,5 230– 370 461–3000
1B 71 371–1650
435 851–1050
1C 635 1051–1450
931 1451–1650
2A 6,5 230–1650
419 851–1050
2B 619 1051–1450
915 1451–1650
3A 67 230– 330 461–3000
88 1001–1600
3B
400 1601–3000
3C 400 1601–3000
264 2401–2800
3D
464 2801–3000
248 2401–2800
3E
448 2801–3000
3-28 07.2015 H48.TAFKFM0S026DE-10

