Page 204 - igs-siegenia-titan-af_de
P. 204
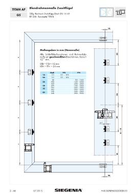
Blendrahmenmaße Zweitflügel
TITAN AF
GS 2-flg. Rechteck Dreh-Kipp/Dreh DS 16 KR
KF GM Bandseite TITAN
Maßangaben in mm (Nennmaße)
Alle Schließblechpositionen sind Rahmenfalz-
maße am geschweißten Blendrahmen. Falzluft
12 +1 mm.
RFB=FFB+12mm
RFH=FFH+24mm
Maß FFB FFH
1A 3,5 331– 850
2A 3,5 331– 850
88 801–1600
3A 288 1601–2000
400 2001–3000
3B 400 1601–3000
264 2401–2800
3C
464 2801–3000
248 2401–2800
3D
448 2801–3000
3-44 07.2015 H48.TAFKFM0S028DE-10

