Page 180 - igs-siegenia-titan-af_de
P. 180
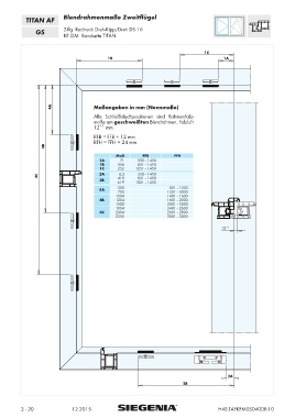
Blendrahmenmaße Zweitflügel
TITAN AF
GS 2-flg. Rechteck Dreh-Kipp/Dreh DS 16
KF GM Bandseite TITAN
1C
1B 1A
4A Maßangaben in mm (Nennmaße)
Alle Schließblechpositionen sind Rahmenfalz-
maße am geschweißten Blendrahmen. Falzluft
12 +1 mm.
RFB=FFB+12mm
RFH=FFH+24mm
4B
Maß FFB FFH
1A 71 330–1450
1B 556 851–1450
1C 252 1251–1450
6,5
4C 2A 419 330–1450
851–1050
2B
619 1051–1450
500 801–1200
4A
700 1201–3000
1004 1401–1600
4B 1204 1601–2000
1500 2001–3000
1804 2401–2600
4C 2004 2601–2800
2300 2801–3000
12 +1
2A
2B
3-20 12.2015 H48.TAFKFM0S040DE-10

